HOME









< UG - 1,000L~200L >
| 품명 (용량L) | A | B | C | D | E | F | M |
|---|---|---|---|---|---|---|---|
| UG-1000 | 1080 | 1160 | 1265 | 1430 | 200 | 90 | 390 |
| UG-800 | 990 | 1130 | 1250 | 1420 | 185 | 90 | 390 |
| UG-600 | 880 | 1060 | 1150 | 1330 | 160 | 67 | 390 |
| UG-400 | 785 | 920 | 990 | 1180 | 155 | 67 | 390 |
| UG-200 | 635 | 650 | 730 | 825 | 140 | 60 | 390 |
< UG - 30,000L~800L >
| No | A | B | C | D | E | F | M |
|---|---|---|---|---|---|---|---|
| UG-30000 | 2840 | 4860 | 5055 | 2520 | 2030 | 270 |
450 |
| UG-20000 | 2480 | 3400 | 3590 | 3810 | 2030 | 270 |
450 |
| UG-15000 | 2710 | 3140 | 3260 | 3360 | 1920 | 270 |
450 |
| UG-10000 | 2175 | 2810 | 3055 | 3235 | 1450 | 275 |
450 |
| UG-8000 | 2175 | 2520 | 2765 | 2945 | 1450 | 275 |
450 |
| UG-6000 | 2005 | 2010 | 2160 | 2370 | 1400 | 190 |
450 |
< UG - 30,000L~800L >
| No | A | B | C | D | E | - | M |
|---|---|---|---|---|---|---|---|
| UG-5000 | 1830 | 1930 | 2160 | 2330 | 300 | - | 450 |
| UG-4000 | 1700 | 1750 | 1930 | 2200 | 300 | - | 450 |
| UG-3000 | 1600 | 1620 | 1785 | 2000 | 280 | - | 450 |
| UG-2000 | 1400 | 1450 | 1600 | 1785 | 280 | - | 390 |
| UG-1500 | 1220 | 1330 | 1475 | 1620 | 255 | - | 390 |
| UG-1000 | 1080 | 1200 | 1300 | 1460 | 210 | - | 390 |
< 탱크 도면 1 >
< UG-5,000L~1,000L >
| 품명 (용량L) | A | B | C | D | E | F | M |
|---|---|---|---|---|---|---|---|
| UG-5,000 | 1830 | 1880 | 1930 | 2160 | 2330 | 300 | 450 |
| UG-4,000 | 1700 | 1750 | 1750 | 1930 | 2200 | 300 | 450 |
| UG-3,000 | 1600 | 1650 | 1620 | 1785 | 2000 | 280 | 450 |
| UG-2,000 | 1400 | 1450 | 1450 | 1600 | 1785 | 280 | 390 |
| UG-1,500 | 1220 | 1270 | 1330 | 1475 | 1620 | 255 | 390 |
| UG-1,000 | 1080 | 1230 | 1200 | 1300 | 1460 | 210 | 390 |
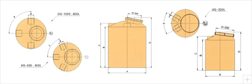
< UG-1,000L~800L >
< UG-600L~400L >
| 품명 (용량L) | A | B | C | D | E | F | M |
|---|---|---|---|---|---|---|---|
| UG-1000 | 1080 | 1230 | 1160 | 1265 | 1430 | 200 | 390 |
| UG-800 | 990 | 1040 | 1130 | 1250 | 1420 | 185 | 390 |
| UG-600 | 880 | 930 | 1060 | 1150 | 1330 | 160 | 390 |
| UG-400 | 785 | 835 | 990 | 990 | 1180 | 155 | 390 |
| UG-200 | 635 | 675 | 730 | 730 | 825 | 140 | 390 |
< UG-30,000L~6,000L/ >
< UG-10,000L >
| 품명 (용량L) | A | B | C | D | E | F | M |
|---|---|---|---|---|---|---|---|
| UG-30,000 | 2840 | 2900 | 4860 | 5055 | 5250 | 2030 | 450 |
| UG-20,000 | 2840 | 2900 | 3400 | 3590 | 3870 | 2030 | 450 |
| UG-15,000 | 2710 | 2770 | 3140 | 3260 | 3360 | 1920 | 450 |
| UG-10,000 | 2350 | 2410 | 2515 | 2725 | 2860 | 1180 | 450 |
| UG-8,000 | 2175 | 2235 | 2520 | 2765 | 2945 | 1450 | 450 |
| UG-6,000 | 2005 | 2065 | 2010 | 2160 | 2370 | 1400 | 450 |

