HOME
< 탱크설치 적용 >



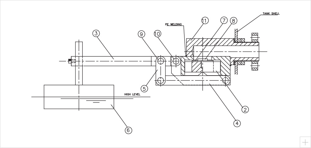
| No | DESCRIPTION | MAT’L | Q, TY | WEIGHT | REMARK’S |
|---|---|---|---|---|---|
| 1 | BODY | PE | 1 | - | - |
| 2 | SEAT | PE | 1 | - | - |
| 3 | LIFTING LEVER | PVC | 1 | - | - |
| 4 | STOP LEVER | PVC | 1 | - | - |
| 5 | LINK | PVC | 1 | - | - |
| 6 | FLOAT | PVC | 1 | - | - |
| 7 | PACKING | EPMD | 1 | - | M18*25L |
| 8 | BOLT | PE | 1 | - | M24*40L |
| 9 | BOLT | PE | 3 | - | M24*100L*40S |
| 10 | BOLT | PE | 2 | - | KS10K |
| 11 | NOZZLE | PE | 1 | - | FLG 50A |

